Slow sand filtration water treatment plants

The limited amounts invested in the treatment of safe water in rural areas are partly explained by the high cost of water treatment systems. Consequently, the majority of rural communities are still drinking superficial water that does not meet the required standard of quality, causing serious health problems.

In many cases, the high cost of water treatment systems and the poor quality of water deter investment in even the simplest systems of untreated water conveyance by gravity, further aggravating the health situation and forcing the population – particularly women and children – to walk long distances to fetch water of a worse quality than that which they could obtain by conveyance from the headwaters of nearby rivers.

Slow sand filtration systems are a technically viable water treatment solution. Nevertheless, there are still a number of difficulties involved in the implementation of the technology and the operation of the system. In addition, the direct cost of the construction is relatively high. A large percentage of these systems have been abandoned for the following reasons:

  • Inappropriate designs, as the variations in the quality of water at different times of the year were not taken into account.
  • The people in charge of operating them are usually members of the community who have not been adequately trained to operate the system.
  • The institutions responsible do not monitor the installations adequately.
  • Spare parts are not locally available.
  • The sand on the filter bed is not replaced when the minimum thickness has been reached, after several layers have been scraped off.

The main characteristic of slow sand filtration is that, due to the effect of biological activity, it efficiently removes pathogenic organisms from raw water, particularly the bacteria and viruses responsible for transmitting water-related diseases. Furthermore, no chemical products are required, nor highly qualified, continual supervision.

Slow filtration is undoubtedly the most adequate technology for rural areas. In order to avoid some of the problems described, however, it is necessary to apply solutions that take into account local technical and economic capacities, so that the system can actually achieve its purpose to supply drinking water to rural populations.

The proposal contained in this handbook is a low-cost alternative that is technically adequate and easily managed by the community. It consists of modified gravel pre-filtration, slow sand filtration and disinfection units adapted

DESIGN

Before embarking on a treated water supply project, it is essential to evaluate and define the level of organisation in the community. If it is insufficient or non- existent then the operation and maintenance of the system will most likely be neglected and eventually abandoned.

The community must participate in every stage of the installation of the water supply service, including the selection of the technical option, the construction and supervision of the works and the management of the service.

In the design stage, the community must study the proposed solutions and decide upon the best technical alternative and the most appropriate service. Consequently, they must be aware of the costs of the system – including their own contribution to the construction and the rates to be paid, the advantages and disadvantages of each alternative and their operation and maintenance responsibilities (UNDP 1998).

The following factors must be borne in mind for a preliminary study to define possible water treatment solutions:

  • Weather conditions: The temperature has a substantial influence on the performance of water treatment systems and the intensity and duration of the rain influences the quantity and quality of the source.
  • Watershed characteristics: Human and natural factors, such as discharges of residual water or run-off from chemically treated farmland, can seriously affect the quality of the water.
  • Quality of the water: A physical, chemical and bacteriological analysis of the water is necessary in order to determine its quality and the level of treatment required.
  • Location of the plant: The land must be easily accessible, having a natural slope of between 5 and 10% and having no exposure to natural hazards or to subterranean water nearby. A written agreement with the owner must be signed.
  • Characteristics of the community: It is necessary to know the customs and beliefs that could affect the acceptance of the system, the characteristics of existing organizations, the availability of natural materials and human resources, and the level of schooling.
  • Existence of water-related diseases: The selection of water treatment processes as a possible solution for supplying drinking water to rural communities depends on the quality of the raw water.

P = Pre-sedimentation S = Sedimentation PC = Gravel Pre-filter in layers with an ascending flow PS = Gravel Pre-filter in series with vertical or horizontal flows FL = Slow sand filter C = Sieve

  • If the water contains faecal coliforms and turbidity levels that exceed the values shown in the table, it is advisable to look for other water sources.
  • At the entrance to the plant, a triangular weir structure should be considered to measure the flow, in which the desired water should be marked with paint. The operator can open the inlet valve to reproduce the flow required to operate the system.

AERATION

Aeration consists of blending the water with the air in order to:

  • Increase the oxygen content in the water
  • Increase the pH in the water by reducing its carbon dioxide content
  • Remove the iron, magnesium, hydrogen sulphate, methane and various volatile organic compounds responsible for the flavour and smell of the

water (Hofkes et al, 1987).

The simplest aeration methods are described below:

Multiple tray aerator

This is an economical solution that occupies little space. It consists of four to eight trays with mesh bottoms, placed one on top of another with a 30-50cm space between them. The water is evenly distributed in the first tray through porous pipes, or by stopping the gush with a bar (as shown in the figure), so that the water trickles into the tray at a rate of 0.02 m3/s per square metre of the tray's surface. Small droplets are then sprayed into the next tray. The trays can be made of various materials: asbestos-cement sheets, plastic pipes with small diameters or parallel wooden slats.To obtain a finer spray, the aerator trays can be filled with thick gravel approximately 10cm deep.

Fig 2: Wooden trays brake water up into droplets

Cascade aerator

This consists of either four or six steps, each 30cm high and having a capacity of approximately 0,01 m3/sec per metre of width. An obstacle is often placed at the edge of each step to produce turbulence and thus improve the aeration efficiency,

Although more space is required than for multiple tray aerators, less head is lost and no maintenance is required.

PRE-FILTRATION

Many designs of water treatment plants fail to take into account the differences in the quality of water, particularly during the rainy season when turbidity increases, obstructing filters and reducing their effectiveness. Hence the need to previously clear the water through different processes, including pre-filtration, which not only removes turbidity but also algae and bacteria, lengthening the life of the filters and reducing the cleaning frequency (Collins et al, 1991).

Although the efficiency of ascending and descending flow pre-filters is similar, the former are easier to maintain as the hydraulic retro-washing operation is simpler.

The alternative of an ascending flow in layers is recommended for water with less than 50 UT turbidity with short peaks. On the other hand, the series pre- filter is better for poor quality water as it has a better capacity for storing solids (AARAUV 1985).

There are two alternatives for achieving a uniform flow in the pre-filtration units:

  • Structure with rectangular tanks equipped with manual sluice valves to isolate the units. Although a small investment is required, this is the most comfortable solution for the operator and the most reliable in the long term.
  • Water measuring devices at the entrance of each unit and the subsequent regulation of the intake valve. No additional investment required.

Gravel pre-filter in layers, with an ascending flow

Description

The intake pipe goes through the centre of the pre-filter to the bottom of the unit. From this pipe, the water is distributed evenly throughout the unit by means of secondary porous pipes. The filtration zone consists of four layers of gravel of different sizes, with the thickest gravel forming the bottom layer and the finest gravel the top layer.

The water goes through the filtration zone in an ascending manner and is collected by the outlet pipe which has 12.7mm diameter holes at 50mm from the centre and 0.40m from the gravel filtration bed. This pipe can be larger than the intake pipe to reduce the head loss and ease the outgoing flow.

The drainage zone is at the bottom of the pre-filter. The floor of the unit has a 12.5% incline to ease the discharge of sediment to the cleaning water discharge channel. Slabs or bricks are placed on the discharge channel to support the gravel, at intervals of two or three centimetres (CRHEA 1991; Marrón 1998).

Design criteria

The filtration speed is selected depending on the quality of the water: It increases in accordance with the quality at a rate of 1 to 1.5 m/h.

  • The speed ratio in the secondary and main pipes that distribute the water in the bottom of the unit should be Vp/Vs < 0.462 for an even distribution. The diameter of the secondary pipes is thus obtained.
  • The loss of volume in the bed during the normal pre-filtration operation is approximately 20cm.
  • The pre-filtration-filtration system has a limited capacity for assimilating sudden differences in the quality of raw water.

Other gravel pre-filtration models with ascending flow layers

Series vertical flow gravel pre-filtration

Horizontal flow gravel pre-filtration

FILTRATION

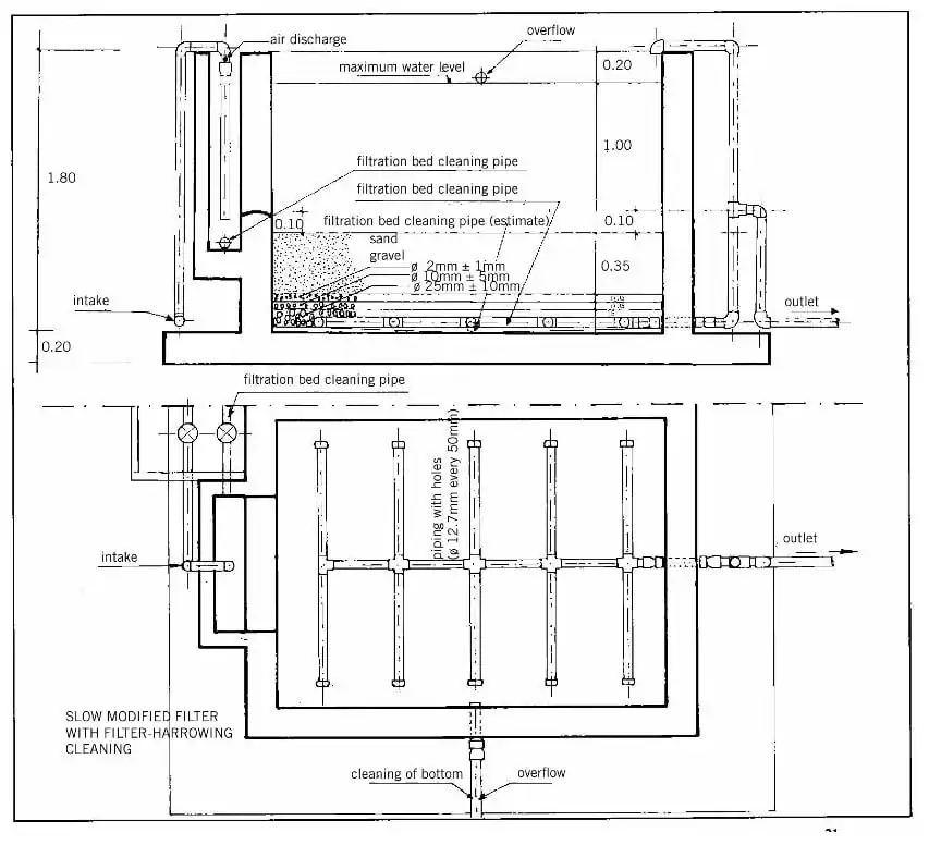
Slow modified filter with filter-harrowing cleaning

The slow sand filter proposed below differs from the conventional variable head slow filter in the following aspects:

  • Its water inlet and outlet structures are simpler than those of conventional filters, without altering their function.
  • Considering that the main biological activity in the sand bed occurs in the first layers and that the high temperature in the Amazon region is favorable for this activity, it is suggested that the height of the bed should be 35cm so that 95% of the coliforms can be removed.
  • The ascending flow filter-harrowing cleaning method is applied, as shown on page 22.

With the above-mentioned modifications, the direct cost of building the filters is reduced by approximately 40% (the structures are simplified and the height of the filter box is reduced)), in addition to making its operation easier.

The selection of sand for the filtration bed is a critical point, as the need to transport the selected sand from distant places raises the costs significantly; this could represent 30% of the direct construction costs of the filters. Technical literature is very demanding regarding the characteristics of the sand. With a simple method, however, locally-available sand can be sifted and cleaned to obtain an adequate filtration bed without affecting the effectiveness of the filter (see the Operation and Maintenance chapter).

Description

During a normal filtration operation, the water enters through the top part of the filter to the supernatant layer. The inlet pipe has two holes to release the possible accumulation of air at the top of the inlet pipe. The water will remain in the supernatant layer for several hours, during which time the suspended particles will settle.

The obstruction of the filter will cause the supernatant layer to rise to the brim, at which time it will be necessary to clean the sand bed. There must be 20cm of free space above the brim.

The greatest biological activity takes place on the surface layer of sand, where the majority of pathogenic organisms in the water are removed. The bed must be between 30 and 40cm high, depending on the quality of the gross volume of water. The inner walls of the filter box in the section containing the filtration bed must have a rough finish to prevent the formation of short-circuits.

The sand must go through a sifting process to eliminate grains that are too thick or too fine. Both the gravel and the sand must then be washed before being placed in the filter, in order to eliminate organic matter and clay (see Operation and Maintenance chapter).

The water goes through the filtration sand bed to the drainage system underneath, which is comprised of porous pipes leading to the next unit. Layers of gravel are placed on top of the porous pipes at the bottom to support the sand.

Outside the filter, the outlet pipe has a 10-20cm tee pipe above the sand bed to prevent any accidental discharge from the filter which could affect the layer of micro organisms and avoid the formation of negative pressures during the operation. This pipe serves the same purpose as the device that controls the minimum level in conventional filters.

In the cleaning canal, the filter-harrowing method is used, collecting the water that drags dirt from the bed during the raking process.

Design criteria

The smaller the effective diameter of the sand, the more efficiently will bacteria be removed in the filter; however, the cleaning frequency will also increase. For clear water with a high bacteriological content, small effective diameters will be selected, whereas large effective diameters will be chosen for cloudy water.

  • For water with a high bacteriological content, low filtration velocities are recommended, and a 0.4m-thick bed.
  • Drainage pipes consist of a main drain and porous side drains with 12.7mm diameter holes at intervals of 50mm on the bottom, through which the treated water will enter. The space between the side drains should be equivalent to 1/16 of the total length of the side drains and 1/32 of the total length of the wall.
  • The sizing of the pipes should be based on the criteria that the speed limit at any point in the pipes should not exceed 0.30 m/s. The list of velocities between the main drain (VD) and the secondary drains (Vd) should be VD/ Vd < 0.462 to obtain an even distribution.
  • A maximum height of 3m from the outlet of the pre-filters to the base of the filter should be considered, so that the water flowing from the pre- filters can be used for flow or counter-flow filter cleaning. This height prevents the loss of head generated by silting in the filters, allowing the water to flow normally during the cleaning process.

DISINFECTION: small-scale drip chlorinator

Description

  • Original solution tank This consists of a small concrete tank on top of the reservoir, placed near the water inlet and next to the tank cover. The inner walls and floor of the chlorinator must be lined with a 2cm layer of cement with a sealer to prevent leaks. It is important that there should be no leakage – particularly through the floor – because the chlorine could deteriorate the structure of the reservoir. The floor should be slightly sloping towards the cleaning pipe. The tank should have a maximum storage capacity sufficient for seven days.

  • Small-scale chlorinator lid The cover over both the chlorinator and the reservoir should have a padlock to prevent strangers from handling them. They should always be in place in order to prevent the chlorine from evaporating. Chlorine can still evaporate through the grooves between the cover and the walls of the chlorinator, however. To prevent this, a rubber inner tube should be nailed to the edges of the tank so that it is hermetically sealed.
  • Drip installation This consists of a ½" pipe and a ½" plastic tap placed 3cm above the floor of the chlorinator. The tap is useful for controlling the drip. The drip control system consists of a floater and a pipe with a hole through which the flow – and therefore the drip – can be constant.
  • Cleaning pipe This is a ½" plastic pipe which is level with the floor of the chlorinator. It has a plug at the outlet point which can be opened when the chlorinator requires cleaning. (Marrón, 1998b).

OPERATION AND MAINTENANCE

A flow-measuring device should be installed at the entrance to the treatment plant, as well as a corresponding inlet valve to regulate the operating flow in the plant.

Below is a valve scheme for the conveyance of treated water. The bypass valves (B) enable the plant to continue operating even when a unit is out of service.

For the flow-measuring device, a triangular weir and two rectangular weirs are recommended, as shown in the figure.

In order to regulate the flow, the IP inlet valve is switched on until the water in the triangular weir reaches the paint mark, which indicates the plant's operating flow. The rectangular weirs serve to make sure that the water enters the two sediment tanks evenly. Two simple wooden sluice gates serve the purpose of the IS1 and IS2 valves, shutting off water flow into a sediment tank during maintenance.

PRE-FILTER IN ASCENDING FLOW LAYERS

Pre-filters serve to eliminate impurities that cloud the water. If impurities enter the filter directly they will obstruct it: frequent cleansing is therefore necessary.

Dirty water enters through the lower part and rises through the gravel filtration bed, which itself retains algae, a good percentage of bacteria, and all suspended matter larger than 10mm in diameter. Then the upper pipes collect the water to convey it to the next treatment unit.

Operation of the pre-filter in ascending flow layers

  • Start-up To fill the pre-filter, shut off the drainage valve and slightly open the inlet valve so that a moderate flow does not drag the solids accumulated on the bed. This flow can be increased gradually as filling progresses.
  • Normal pre-filtering operation During the pre-filtration operation the inlet and outlet valves should be open. The drainage valve should remain shut. When necessary, remove algae and floating elements.
  • Hydraulic cleaning The discharge descending from the pre-filter will drag the particles that settled in the gravel during normal operation. For thorough cleaning it is important to completely empty the pre-filter. The operation should be repeated two or three times until the water is clean.

The pre-filter should not remain empty for too long, because adhered material will be compacted, making the subsequent hydraulic cleaning process less effective.

In order to prevent accumulated mud from compacting (and to reduce the regularity of manually cleaning the gravel), hydraulic cleaning should take place approximately once a week during the rainy season (high turbidity) or every two months during a dry season (low turbidity).

The following steps should be followed:

  1. Shut the inlet valve and open the drainage valve
  2. Wait until the unit is completely empty
  3. Fill the unit again, as indicated in the start-up chapter, i.e. with a moderate flow
  4. If the cleaning water is cloudy, repeat the operation
  • Manual cleaning

There comes a time when, after successive hydraulic cleaning processes, not all the material accumulated in the filtration bed is eliminated because it is stuck to the gravel walls. In this case the pre- filter should be cleaned manually. As a reference, this should be done at least once a year after the rainy season.

First of all, remove the water from the inlet pipe. Extract the top layer and wash it in a water container. The best procedure for washing gravel is to stir it mechanically in a container so that the friction loosens the solids that are stuck to the gravel surface. A cylinder could be used, as shown in the figure. The gravel is then scraped with the help of a stick whilst the clean water is entering the cylinder through a hose. The water with the impurities from the gravel will go out through another hose placed further up in the cylinder.

The same procedure is followed for the next layer, trying not to mix the gravel of the different layers. If for any reason they do mix, they should be sifted again to separate them.

The pre-filter must contain water in order to prevent the filtered material from compacting the unwashed gravel onto the wall in the pre-filter.

Once the pre-filter is empty, the walls must be brushed down and the layers replaced on the bottom.

The gravel should be replenished carefully in layers of corresponding size. This should be done immediately after this cleaning process, in order to avoid possible contamination.

Maintenance of pre-filters

  • Cut down weeds, shrubs and trees around the pre-filters.
  • Protect the soil against erosion.
  • Repair cracks in the structure walls.
  • Check all the valves and grease them if necessary.
  • Extract floating elements from the water.

SLOW SAND FILTERS

The main characteristic of slow filtration is that it eliminates bacteria and viruses in the water. It is a very effective mechanism because it simulates the natural purification process that occurs when rain water goes through the crust of the earth down to subterranean rivers.

A thin, jelly-like film forms on the surface of the sand, digesting and eliminating impurities in the water. Once the water has gone through this layer it seeps into the sand bed, where the main part of the purifying treatment takes place, and where pure water is obtained.

During the filtration process, impurities come into contact with - and are trapped by - the grains of sand on the surface. The impurities then go through a chemical and biological degradation process to become simpler, more inoffensive forms that dissolve or remain on the sand bed as inert matter until the filter is cleaned.

Other advantages of slow filtration:

  • No chemical substances need be applied
  • The system can be managed by a fairly unskilled operator on a regular basis.

Operation of the slow sand filter with filter-harrowing cleaning

Preparing the sand bed

It is important to eliminate the finest and thickest grains of sand. This will maintain good porosity in the bed without affecting the successful elimination of bacteria and viruses. The sand must be free of any clay or organic matter.

To prepare the sand it must be sifted as follows: place the fixed sifter at a 45% angle. With a spade, forcefully throw the sand at it. The sand should be completely dry during this task. (Cánepa 1988).

The steps are as follows:

  1. Sift the sand through a sifter with 2.54cm (1") holes to eliminate pieces of wood, stones, etc.
  2. Sift the sand through a sifter with 1.588cm (5/8") holes to retain thick sand.
  3. Sift the sand through a 0.635cm. (1/4") and 0.317cm. (1/8") sifter to eliminate sand that is too fine.
  4. Wash the sand to remove the clay and organic matter adhered to the grains of sand, following the same procedure as for washing gravel. A total of eight people are required for the sifting operation.

Start-up

The idea is to fill the two filters with an ascending flow, in order to avoid the accumulation of air bubbles.

1) Check the filter valves to make sure they are shut

2) Fill the first filter through the top opening both the inlet valve (F1) and the outlet valve (SF1).

3) Whilst the first filter is filling up, close the inlet valve of the reservoir (IR) and open the outlet valve of the second filter (SF2) so that the water treated in the first filter enters through the bottom of the second filter. Filling the second filter with an ascending flow eliminates the air bubbles accumulated in the sand bed.

4) When the water in the second filter reaches a level of 10cm above the sand bed, open the inlet valve (IF2) and close the inlet valve of the first filter (IF1).

5) Open the cleaning valve at the bottom of the first filter which was filled through the top, in order to drain it completely.

6) When the first filter is empty, close the drainage valve and let the water treated in the second filter enter the first filter though the bottom, filling it up to between 10 and 20cm above the sand bed.

7) Open the inlet valve to the first filter (IF1) and the inlet valve to the reservoir for the normal filtration process.

Normal filtration operation

During the filtering operation the inlet and outlet valves must be open, whereas the valves for cleaning the bottom and the filtration bed should remain shut.

When necessary, algae and floating elements should be removed.

The incoming flow must be measured by unscrewing the universal union of the descending pipe through which the water enters, whilst at the same time filling a bucket with a specific capacity. If the flow entering the filtration units is different, the inlet valves must be regulated so that the incoming flow is the same.

Cleaning the filtration bed

If the water level in the filter rises to the brim, it means that the sand bed is obstructed and needs to be cleaned (Canepa 1988; Marrón 1998a).

Two cleaning methods can be applied, depending on the duration of the preceding filtration flow.

Dry filter-harrowing cleaning method: Applied when the previous run has lasted more than a month. It consists of de-compacting the sand and redistributing the filtered material to regenerate the porosity of the sand bed. (Pardon et al, 1983). These steps should be followed:

1) Close the water inlet and let the water filter at a declining rate throughout the night.

2) The next day, remove floating matter and open the bottom cleaning valve until the water reaches 15cm below the surface of the sand.

3) De-compact the 15cm deep sand bed with a pick, then rake the sand to loosen it and make it more spongy.

4) Open the filter inlet valve.

Whilst the filter-harrowing method is being applied in a dry filter, care must be taken to ensure that only the corresponding quantity of water enters the filter that is still in operation. To this end, close the filter inlet valve until the correct operating flow is obtained. In this way the surplus water in the pre-filters will overflow away. This operation must take place every time one of the two filters is out of service.

This is applied when the previous run has lasted less than a month. It consists of making the water flow against the current (ascending) whilst the sand bed is raked until the cleaning water is less cloudy. The cleaning water will drag the dirt and other matter raked up from the sand. Then the same method applied for the dry filter-harrowing method should be applied. The steps to be followed for cleaning the first filter are:

1) Close the water inlet and let the water filter at a declining rate throughout the night.

2) The next day, remove the floating matter and open valve to clean the filtration bed. Shut the inlet valves to both filters, the outlet valve (SF2) of the filter that will not be cleaned and the inlet valve to the reservoir (R). Open the filter by-pass valves (BF) so that the effluent from the pre-filters enters through the bottom of the filter to be cleaned – ie. through the filtered water outlet pipe (see sketch).

3) Rake the entire depth of the sand bed (30 to 40cm) whilst the water flows against the current until it is clearer, taking care not to rake the layer supporting the gravel below the sand. Rake 15 - 20cm of the whole filter surface by rows; then remove the raked sand from the surface of half the filter to the other half, as shown in the drawing, and rake the remaining 15 to 20cms. Replace the sand and then repeat the operation on the other half of the sand bed. Try and prevent the cleaning water from overflowing and losing sand. This operation can take about two hours and two people are needed to take turns raking the sand.

4) Close the water outlet (SF 1) and the cleaning valve of the filtration bed in the filter undergoing cleaning (filter 1). Open the inlet valve to the reservoir (IR) and the inlet (IF2 and outlet (SF2) valves of filter 2, putting it into normal operating mode.

5) Next, apply the dry filter-harrowing method to filter 1.

Complete filter cleaning

This operation takes place every five years.

1) Remove the sand and the gravel, without mixing the gravel from the different layers.

2) Wash the filter layer and the drainage pipes with a brush and water and replace them if they are deteriorated.

3) Wash the sand and the gravel

4) Put the clean gravel and sand back in place. Replace any lost sand or gravel.

Maintenance of the filters

  • Cut back weeds, shrubs and trees around the filters.
  • Protect the soil against erosion.
  • Repair cracks in the walls of the structure.
  • Examine the valves and grease them if necessary.
  • Remove floating elements from the water layer.
  • Monitor the growth of algae. If there is excessive growth the filters must be covered.
  • Monitor the flow entering the filters.
  • Monitor the smell and flavour of the water.
  • Keep a record of the turbidity at the entrance to the filters and note the length of the filtration process.

SMALL-SCALE DRIP CHLORINATOR

Water of a very good quality is produced by slow sand filtration. Nevertheless, chlorination is essential for complete disinfection purposes, and to avoid future contamination of the water while it is being transported and handled. A chlorine and water solution is prepared in the chlorinator and then allowed to drip into the reservoir to disinfect the water. The drip is controlled with a tap.

Operation and maintenance of the chlorinator

Gauging the flow, calculating the drip and preparing the mother solution

The following operations are only necessary when the chlorinator starts operating and when the quantity of water entering the reservoir varies, for example during a change of season. (Marrón, 1998b). An appraisal must be made to calculate the flow entering the reservoir. Once the flow has been calculated, the quantity of chlorine required, the volume of the mother solution to be prepared and the drops per minute required to disinfect the water can be obtained using the following table.

After using the above table to calculate the quantity of chlorine, place it in a bucket with enough water to dissolve it, then pour this mixture into the chlorinator and add sufficient water to complete the litres of mother solution recommended by the table. The mother solution (concentration: 5000 ppm) is the mixture of chlorine and water poured into the drip chlorinator to disinfect the water in the reservoir. The tap must then be regulated to provide the approximate number of drops per minute indicated in the table. Count the drops per minute and if the chlorinator provides five drops more or less than indicated in the table, it can be considered correct.

The chlorine considered in this table is powdered HTH at 65%. If chlorine of another percentage is used, then the necessary weight can be calculated with the following operation (only the second column of the table will vary).

Calibration of the small-scale chlorinator: regulating the drip

Normal type of water is considered for the previous data. However, some physical and chemical aspects of the water could alter the chlorination. Consequently, the drip must always be regulated when putting the chlorinator into operation.

Measuring the residual chlorine in the tanks furthest away from the network will demonstrate whether the drip obtained in the table is correct.

If the necessary amount of residual chlorine is not found (0.2 ppm – 1.0 ppm), the tap must be regulated to increase the drip. Never increase the dose to more than three times the amount calculated in the table.

Operation of the small-scale chlorinator

The mother solution must be removed every two days – because the chlorine tends to settle at the bottom of the chlorinator – and the number of drips must be controlled to make sure they are adequate, otherwise the tap will need to be regulated.

The drip control system, comprised of a flexible polyethylene pipe with a hole and a floater, provides a constant drip. This system must be checked to make sure it is in good condition.

If for any reason the water stops flowing into the reservoir, the tap dripping the chlorine solution must be closed immediately. The chlorine loses its disinfecting power as the days go by, therefore the mother solution must not remain in the chlorinator for more than seven days.

Cleaning the chlorinator

Every time a new mother solution is prepared, the chlorinator must be cleaned to remove previous particles and the remaining solution. To this end, remove the stopper of the cleaning pipe and rinse with water.

OPERATION AND MAINTENANCE TRAINING

A TRAINERS' GUIDE

Training is geared towards changing behaviour. It is therefore an agent of change and ensures the sustainability of water treatment systems.

Knowledge of water treatment procedures and manual operation and maintenance skills will not give rise to a change in behaviour unless they are accompanied by a motivation process and the creation of an appropriate environment among the community and the people in charge of the operation.

Analysis of the situation

It is necessary to analyse the situation in the community and its levels of organisation.

Evaluation of training requirements

Based on an analysis of the tasks to be performed by the operators, a decision must be made regarding how many of them will be trained and the type and level of training they will receive.

The tasks required must be compared with the knowledge and skills of available operators. The training courses must bridge these gaps.

Design of the training programme

The programme will be designed based on previous studies, defining the contents, methodology, materials and the level of knowledge and skills to be acquired (see the example of a training programme).

Implementation of the training programme

If I hear: I forget, If I see: I remember, If I do: I understand. (Old Chinese proverb)

Learning tends to be an imitation process, therefore it is necessary for the trainer to provide proper examples to be followed. This process must be reinforced with practical work to make sure that the operators understand properly, otherwise they should be corrected.

Participatory methods whereby operators communicate with each other and learn by doing are always much more effective than simple lectures.

First of all, the trainer must provide a general vision of all the tasks and procedures required for the operation of a water treatment plant. Then the information on each task must be presented and assimilated as part of a logical sequence. The steps below should be followed for each task:

1) Knowledge must be transmitted through talks, photographs, drawings, questions and discussions (no more than 30 minutes)

2) Demonstration of a practical example.

3) Practical work. This step builds up the operators' confidence in the tasks and should continue until they demonstrate that they are capable of carrying out the task properly.

Characteristics of the trainer A trainer is a learning facilitator who gives participants the opportunity to learn through experience, thus building up their confidence.

It must be remembered that people learn individually, therefore the trainer must:

  • Show a sincere interest in each individual
  • Provide encouragement and support
  • Involve everyone
  • Make sure that he is understood by everyone

Evaluation of the training course

The evaluation consists of obtaining information on the learning progress, in terms of feedback about the knowledge acquired, and the success of the practical work. Evaluation provides useful information to the operators about progress made, and is a source of information for subsequent training sessions.

Impact evaluation

This consists of obtaining information regarding the application of the knowledge acquired (IRC 1983; Waterlines 1997).

Example of a training programme on slow sand filtration

Programme of theoretical courses

BIBLIOGRAPHY

ALLEN, R.B. A method of cleaning slow sand filters developed at the West Hartford, CT water treatment plant.

Water Supply and Water Removal Area of Universidad del Valle (1985). Integrated project on research and demonstration of slow sand filtration. Colombia.

BELLAMY, W.; HENDRICKS D.; LOGSDON, G. (1985). Slow sand filtration: influences of selected process variables. AWWA. Research Foundation. 6666. West Quincy Avenue, Denver, Co. 89235, United States.

CAIRNCROSS, S.; FEACHEM, R. (1978). Small water supplies. The ROSS Institute, London, United Kingdom.

CÁNEPA DE VARGAS, L. (1982). Technification Programme for operational supervisors of water treatment plants: routine operation and maintenance. Slow filtration. CEPIS/PAHO.

CÁNEPA DE VARGAS, L. (1992. Slow filtration: theory and evaluation; design; operation, maintenance and control. CEPIS.

CÁNEPA DE VARGAS, L. (1998). Regional workshop: basic sanitation technologies adjusted to the rural environment. CEPIS/PAHO.

CEPIS (1984). Guide for designing slow filtration plants for rural areas. DTIAPA C-3 Manual. Lima, Peru.

COLLINS, R.; TAYLOR T.; MALLEY, J.P. (1991). "Evaluating modification to slow sand filters". In AWWA. Research Foundation, 6666 West Quincy Avenue, Denver, Co. 80235, United States.

CRHEA EESC-USP (Water Resources and Applied Ecology Centre) (1991). "National seminar on pre-filtration and slow filtration for water supplies". San Carlos, Sao Paulo, Brazil.

HOFKES; EBBO, H.; HUISSMAN, L. (1987). Small community water supplies: Technology of small water supply system in developing countries. IRC.

IRC. Water and Sanitation Centre (1983). Guidelines for operation and maintenance of slow sand filtration plants in rural areas of developing countries.

MARRÓN C. (1998). Modified low-cost filter and filter-harrowing cleaning. XXVI Inter-American Congress on Sanitary and Environmental Engineering. ITDG – Peru.

MARRÓN C. (1998). Drinking water systems: Administration, operation and maintenance handbook. ITDG – Peru.

PARDON, M.; WHEELER, D.; LLOYD, B.J. (1983). Process aids for small scale slow sand filtration. Microbiology Department, University of Surrey, Guildford, United Kingdom.

UNDP – World Bank Water and Sanitation Programme (1998). Peru: guidelines for a national rural water and sanitation programme.

Waterlines, July 1997, vol. 16, No. 1. Technical Brief No. 53: "Training".

Page data
Authors Ibrahim Sail
License CC-BY-SA-3.0
Organizations Practical Action
Ported from http://practicalaction.org/practicalanswers/product_info.php?products_id=351 (original)
Cite as Ibrahim Sail (2009–2024). "Practical Action/Slow sand filtration water treatment plants". Appropedia. Retrieved November 28, 2025.