Hand dug wells

A hand dug well is a type of water well that is constructed using only simple hand tools. Hand dug wells are used all over the world and serve as an extremely effective water source for countless economically developing countries. However, a poorly maintained well is completely ineffective and can even serve to pollute the entire aquifer. Therefore, with 780 million people still without access to improved drinking water as set forth by the World Health Organization[1] it is imperative that all wells are constructed, operated, and maintained appropriately to ensure clean drinking water for the entire lifetime of the well.
Groundwater
Groundwater is one of the most abundant sources of freshwater in the world. It is estimated that there is 35 times more groundwater than all rivers, freshwater lakes, saline lakes, and inland seas.[2] However, since groundwater is far more difficult to obtain we often use our surface fresh water sources. Unfortunately, these surface water sources only make up 0.3% of the Earth's freshwater whereas 30.1% is made up of groundwater. The remaining 68.7% is made up of glaciers and ice caps with 0.9% being attributed to other.[3] For all of the aforementioned reasons it is imperative that groundwater becomes a main source for freshwater consumption.
Groundwater flow
Groundwater flow can occur in two ways: interflow, and baseflow.[4] Interflow is when water flows through the Vadose zone and baseflow is when water flows directly down through the unsaturated zone to the saturated zone and eventually becomes recharge for another source.
Locating groundwater
The location of an adequate groundwater source is the first step in constructing a hand dug well. If the water source is contaminated or not plentiful enough to support use then the well will soon become abandoned. There are countless well documented technologically advanced methods for locating groundwater such as: remote sensing, gravity and magnetic methods (including aerogravity and aeromagnetic surveys), seismic, electrical, electromagnetic, and radioactive methods.[5] However, these methods are usually costly and do not pertain to situations where hand dug wells are intended.
The location of other surface water sources is a key indicator of groundwater. If surface water sources exist then it is best to use the topography of the land to determine an appropriate well location. If no other surface water sources are present, then topographic maps of the area are the best method for locating groundwater. If those are not available and cannot be readily created then the next best method is to look where previous wells have been constructed. When using this method the already constructed well should be tested for its recharge rate to ascertain that the groundwater source is plentiful enough for a second well. The existence of a previous well also opens the opportunity to test the groundwater for contamination. If the original well has been abandoned then there should be caution before constructing a second. The aquifer recharge rate should be determined as well as testing for any contamination that could have lead to the well's closure. Methods for this are detailed below.
_40_in_Shant_Abak.jpg)
When none of the above indicators are present a more geophysical approach is necessary. The most fundamental method for locating groundwater is to look at the topography of the land. Groundwater will always flow by the hydraulic gradient from places of higher head to areas of lower head by the force of gravity. The presence of any other bodies of water is likewise a clear indication of groundwater. Furthermore, the existence of certain rock, soil, and plant formations will always serve as a basis for any existence of groundwater. It has been found that large quantities of shallow groundwater is more common under a valley than under a mountain.[6] Similarly, the water table tends to be higher under areas with the highest surface, such as hilltops, and descends near areas of lower surface, such as valleys.[7] If the region is arid then water abundant plants such as salt cedar and cottonwood trees are indicators of groundwater.[8] Nevertheless, the most certain indicator of groundwater is rock and soil formations and their porosity.
Aquifer formation

Aquifers are layers of rock (possibly fractured rock) or sediment within the saturated region that contain abundant, freely-flowing groundwater.[9] The two most vital characteristics of an aquifer is its porosityand permeability. An aquifer must be porous enough to store water while still being permeable enough to allow water to flow uninhibited. A material could be very porous, yet due to the geometry of the grain packing not be very permeable.
There are two basic categories of aquifers based on their surrounding layers: confined and unconfined. If an aquifer is situated below the ground surface where water can seep directly into the aquifer, then the aquifer is categorized as unconfined; the water table often serves as the upper layer of an unconfined aquifer. A confined aquifer, on the other hand, has a layer of impermeable material above it.
The composition of the ground layers is the foremost indicator of aquifer potential. Some of the most productive aquifer materials are clean and course sand or gravel, course and porous sandstone, broken lava rock, cavernous limestone, basalt, and fractured igneous and metamorphic rocks. Poor aquifer materials are clay, silt, crystalline rocks, and any other dense, non-porous non-permeable material. An approach to determine the composition of the ground is to locate a nearby cliff face and analyze its rock layers. While the layers of the cliff face cannot be taken as an exact match to the surrounding area it can be used as an appropriate starting point.
Construction
Safety
Maximum care should be taken for worker safety at all times. All construction should be done under the supervision of a technical expert. There should always be someone present who has been recently trained in first aid as well as a first aid kit on hand. Communication with emergency services should always be capable. Each worker should be equipped with proper safety attire such as helmets and breathing masks. Breathing masks should always be worn while working inside the borehole. Furthermore, all workers handling equipment or tools should be adequately trained in their use while each tool should be inspected before the beginning of each day for proper functionality. All tools should be placed approximately five yards away from the borehole to prevent being accidentally kicked into the well. Plans should be devised regarding emergency situations such as well collapsing, equipment malfunction, and the event that a worker becomes injured or even unconscious within the borehole. Consider creating clear and easy to use signals regarding equipment operation, especially those related to hoisting workers and tools into the borehole. One such set of auditory signals could be as follows:
- one sound-stop
- two sounds-lower
- three sounds-hoist
- four sounds-hoist personnel
There should also be a distinct signal used only for emergencies.
Health Risks
Working within a well can pose countless respiratory threats, most commonly oxygen deficiency and dust suppression. Depending on the soil being excavated, threats of methane, carbon dioxide, carbon monoxide, sulfur dioxide, hydrogen sulfur, petrol and diesel vapor, and nitrous oxide (if explosives are used) can all become present in the atmosphere.[10] For these reasons it is imperative that the site is inspected by qualified personnel before construction. Workers should always wear breathing masks while working in or around the well and effort should be taken to keep the borehole as well ventilated as possible. If possible, a device that measures oxygen content should always be present to inform workers of hazardous working conditions.
The Occupational Safety and Health Administration defines an oxygen deficient atmosphere as an atmosphere with less than 19.5% oxygen per volume.[11] One rudimentary technique to test oxygen levels is to spark a butane lighter. A butane flame needs an oxygen content of at least 16%. The atmosphere has an oxygen content of approximately 21%.[12] Therefore, if a butane lighter is unable to stay lit then the working conditions have become unsafe for continued occupation.
Location
As mentioned above, the first step in proper well location is understanding the principles behind groundwater flow and aquifer formation. A water well's productivity and longevity is dependent on an adequate aquifer and thus a location should be chosen accordingly. Therefore it is ideal that the well is placed as close to a source or recharge as possible. However, it is also important that the soil is of a material that can be deeply dug into with simple hand tools.
Aside from general hydrological factors, basic health considerations with well placement should also be kept in mind. A well should not be dug within close proximity to any type of latrine or waste disposal site. Furthermore, the well should not be placed nearby to any areas inhabited or used by animals. Water seeping through these soils can contaminate the well. It has also been found that wells located within 100 feet of a river show a significant statistical increase in their positive testing of total coliform.[13] Once a proper location is chosen the area should be cleared to maximize work efficiency. Below is a table of recommended distances from various possible contaminants.[14]
| Septic tank | Sub-Surface disposal field | Sand filter | Leaching, seepage pit, or cesspool | Chlorine tank | Pit privy | Animal pens, barns, silos | Drains, ditches, house foundations |
|---|---|---|---|---|---|---|---|
| 50' | 100' | 50' | 150' | 50' | 100' | 100' | 25' |
If other wells are present then it is important not to place the new well too close to the already established wells. Placing two wells too close to each other will cause interference in their respective pumping rates. The well distance should also be taken into consideration with regard to the cost of possibly connecting the wells with a piping system. It has been found that the optimum well spacing, hydrologically and economically, can be described by the following equation for two wells pumping at the same rate from a thick areally extensive aquifer:[15]
where
Optimum well spacing (ft).
Cost to raise a gallon of water 1 foot, consisting largely of power and equipment charges, in dollars
Capitalized cost for maintenance, depreciation, original cost of pipeline, etc. in dollars per year per foot of intervening distance
The pumping rate of each well (gpm)
The coefficient of transmissibiltiy (gpd/ft)
For wells where Q and T are of no practical significance and the aquifer is less than 100 feet thick then it is recommended the wells should be placed at least 2m apart.[16] If one of the already established wells is a disposal well then the appropriate distance, assuming an areally extensive isotropic aquifer, is given by:[17]
where
Permissible distance between production and disposal wells to prevent recirculation of water (ft)
Pumping and disposal rate (gpd)
Coefficient of transmissibility (gpd/ft)
Natural hydraulic gradient of water table (ft/ft)
Methods
The techniques for constructing hand dug wells has been thoroughly documented by various authors.[18][19][20][21] The following is a compilation of their findings and is meant to serve as a general outline. A complete study into the methods of safely constructing a hand dug well should be done before any building is commenced.
Caisson sinking

This method of well sinking is a safer and more straightforward method than the sink-and-line approach explained below. Caisson sinking is simpler, involves less labor, materials, and ultimately cost. Since caisson sinking involves lining the entire well with caissons this method benefits from the simplicity of using fewer materials.
The well is initially dug to a depth where the soil walls are still strong, five meters is a good starting point. Next, the caissons are properly and safely lowered into the borehole. The first caisson lowered should be thoroughly leveled before any other caissons are lowered on top of it. If the bottom caisson sits at even a slight angle then the well lining can become dramatically crooked as each caisson is stacked. After the first level of caissons are lowered and leveled, temporarily bound them together. This is to assure that once excavation resumes the bottom caisson does not slip out of place. When digging below the bottom caisson it is important to dig slowly and evenly, starting at the center and working your way outward. The caisson should sink under its own weight and the weight of those stacked above it.

Sink-and-line
The sink-and-line method of well lining is done in situ with the excavation; for these reasons it is often referred to as in situ casting. This practice involves digging to a depth of approximately 5 meters and lining the well with shutters. However, this depth can be altered depending on the soil strength. There should be a gap equal to the desired wall thickness in between the shutters and the inner rim of the excavated borehole; 7-10cm is an appropriate bound for wall thickness. Once the shutters have been properly installed for the first five meters concrete is filled behind them. After the concrete cures the shutters are removed and digging continues to prepare for the second set of shutters. This process of digging, lining with shutters, and back-filling with concrete is continued until the water table is reached. Once the water table is reached then caisson sinking is continued until the desired well depth is achieved.
Resources
Below are links for resources that pertain to the construction of hand dug wells using the aforementioned methods. Each resource thoroughly covers the complete construction of a hand dug well, including safety practices, health risks, tools, equipment, and work site organization.
Well lining
Various materials have been used to line wells in the past such as timber, masonry (brick or stone), culvert, lime concrete, cement concrete, and reinforced concrete.[24] Most of these materials have been weeded out due to various deficiencies such as lack of strength and demanding continuous maintenance. Int the end, cement concrete and reinforced concrete have proven the most reliable. One advantage reinforced concrete has over cement is that reinforced concrete does not need to be as thick because of its added structural support. Regardless of which method is used, the top three meters of the well should always be completely sealed. If not, then water traveling through the top layers of soil which have not had time to be filtered and decontaminated will likely enter the well. When lining the well, some argue that either a more porous concrete (concrete mixed without sand) should be mixed or drainage holes should be created in the bottom caissons during their casting. Both methods are recommended for greater aquifer flow into in the well bottom. However, others have also argued against the structural integrity of porous concrete and claim that sufficient water will flow naturally through the caisson joints. There is not substantial evidence for or against either practice.
Collapse strength
Whichever well lining is chosen, the most important aspect is that the lining is structurally strong enough to withstand collapsing. A weak lining can crack and allow contaminated surface water to seep into the well. One method of calculating the collapse pressure of a well was proposed by Cleindeinst:[25]
where
Critical collapse pressure (psi)
Modulus of elasticity
Poisson's ratio
Outer diameter of the lining (in.)
Thickness of the lining (in.)
If it is a double walled lining then the collapsing pressure is given by[26]
where
Collapsing pressure (psi)
and the terms and the mean diameter is given by
where
lining inside diameter (in)
lining outside diameter (in)
Thickness of inside joint (in)
Thickness of outside joint (in)
If the well lining is made up of a perforated material then the yield strength is given by:[27]
Yield strength (lb)
Mean diameter as described above (in)
lining thickness
Wellhead

The type of well head chosen depends on the method of drawing water. If an appropriate type of pump is chosen then the wellhead can completely seal the borehole with only the pump penetrating the wellhead. If the water will be drawn using a more manual method such as a bucket-pulley system then a removable wellhead is necessary. Regardless of the wellhead type, it is important that the wellhead has a few key properties: First of all, if the wellhead is removable then it must be capable of completely sealing the well and being securely closed. This is imperative to reducing the chances of contamination. More often than not, poor wellheads or complete lack thereof are the causes of well contamination and ultimate closure. In a study it was found that 71% of wells with loose and unsealed wellheads are contaminated with total coliform bacteria.[28] If the wellhead is capable of being removed then an apron should be constructed to decrease the chances of foreign objects being kicked into or inadvertently dropped into the well.
Well intake
The intake of the well should be covered with a screen in order to filter out rock particles. However, some may not know that screen size is also a determinant of the aquifers flow rate into the well; not just the permeability of the screen, but its length and diameter as well. It has been found that a screen reduces the effective radius of the well by the following equation:[29]
where
Effective radius of well
True radius of the screen
Area of perforations in the screen
Well cylinder wall area
It has also been found that the length of the screen directly affects the discharge of the aquifer into the well by the following equation:[30]
Length of screen (feet)
Discharge (gpm)
Effective open area/foot of screen (sq.ft./ft) e.g., approximately one-half actual open area
Critical velocity (fpm) e.g. velocity above which sand particle is transported
Dimensions
The depth and diameter of a well will vary with the designer's desired recharge rate and ability to excavate. However, as noted above other factors such as screen size also affect the effective radius of the well. Furthermore, it was found in a study that 71% of wells with a depth less that 199 feet tested positive for total coliform.[31]
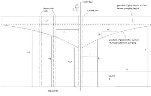
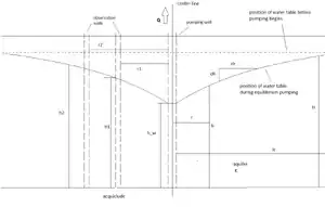
Governing equations


For the discharge of a steady flow infinitely extending confined or unconfined aquifer we have:[32]
where
discharge
hydraulic conductivity
aquifer depth
head levels above impervious bed
radial distance of respective head levels
If it is an unconfined aquifer then
To find the rate of drawdown for a constant radial distance r:[33]
Drawdown per log-cycle of time
time
== References ==
- ↑ Progress on Drinking Water and Sanitation 2012 Update. New York: Unicef, 2012. Print.
- ↑ Heath, Ralph C., and Frank W. Trainer. Introduction to Ground-water Hydrology. 1st ed. New York: Wiley, 1968. Print. Reference
- ↑ Source: Gleick, P. H., 1996: Water resources. In Encyclopedia of Climate and Weather, ed. by S. H. Schneider, Oxford University Press, New York, vol. 2, pp.817-823.
- ↑ Fitts, Charles R. Groundwater Science. 1st ed. Amsterdam: Academic, 2002. Print.
- ↑ Nath, Sankar Kumar., and Shamsuddin Shahid. Geophysical Prospecting for Groundwater. Rotterdam: Balkema, 2000. Print.
- ↑ Moore, John E. Field Hydrology: A Guide for Site Investigations and Report Preparation. New York: London: Washington, D.C.: Boca Raton: Lewis, 2002. Print.
- ↑ Strahler, Arthur Newell. Introduction to Physical Geography. 2nd ed. New York: J. Wiley, 1965. Print.
- ↑ Moore, John E. Field Hydrology: A Guide for Site Investigations and Report Preparation. New York: London: Washington, D.C.: Boca Raton: Lewis, 2002. Print.
- ↑ Strahler, Alan H., and Arthur Newell Strahler. Physical Geography Science and Systems of the Human Environment. 2nd ed. New York: Wiley, 2002. Print.
- ↑ Safety in Wells and Boreholes. London: Institution of Civil Engineers, 1972. Print.
- ↑ Occupational Safety and Health Standards, § 1910.134(b). Print.
- ↑ Williams, David R. "Earth Fact Sheet." Welcome to the NSSDC! NASA, 17 Nov. 2010. Web. 09 Apr. 2012. <http://nssdc.gsfc.nasa.gov/planetary/factsheet/earthfact.html>.
- ↑ Thomas, Gonzales R. "The Effects That Well Depth and Wellhead Protection Have on Bacterial Contamination of Private Water Wells in the Estes Park Valley, Colorado." Journal of Environmental Health 71.5 (2008): 17-23. Print.
- ↑ Construction and Maintenance of Water Wells. 2nd ed. Mt. Rainer: Volunteers in Technical Assistance, 1979. Print. United States Peace Coprs.
- ↑ Theis, C. V. The Relation between the Lowering of the Piezometric Surface and the Rate and Duration of Discharge of a Well Using Ground Water Storage. Washington: U.S. Dept. of the Interior, Geological Survey, Water Resources Division, Ground Water Branch, 1952. Print.
- ↑ Campbell, Michael D., and Jay H. Lehr. Water Well Technology: Field Principles of Exploration Drilling and Development of Ground Water and Other Selected Minerals. New York ; Montréal: McGraw-Hill, 1973. Print.
- ↑ Theis, C. V. The Relation between the Lowering of the Piezometric Surface and the Rate and Duration of Discharge of a Well Using Ground Water Storage. Washington: U.S. Dept. of the Interior, Geological Survey, Water Resources Division, Ground Water Branch, 1952. Print.
- ↑ Abbott, Stephen P. Hand Dug Wells: Choice of Technology and Construction Manual. Print.
- ↑ Water for the World. Washington, D.C.: U.S. AID, 1982. Print.
- ↑ WATT, S. B., and W. E. WOOD. Hand Dug Wells and Their Construction. 2nd Edition. 2nd ed. London: IT Publications, 1979. Print.
- ↑ Cochran, Harry Archibald. The Technique of Well Sinking in Nigeria (with 9 Figures and a Map). [Lagos]: Published by the Authority of the Nigerian Government, 1937. Print.
- ↑ Water for the World. Washington, D.C.: U.S. AID, 1982. Print.
- ↑ Abbott, Stephen P. Hand Dug Wells: Choice of Technology and Contstruction Manual. Print.
- ↑ Cochran, Harry Archibald. The Technique of Well Sinking in Nigeria (with 9 Figures and a Map). [Lagos]: Published by the Authority of the Nigerian Government, 1937. Print.
- ↑ Cleindeinst, W. V. "A Classical Expression for Critical Collapse Pressure of Pipe under External Pressure." American Petroleum Institute Drilling and Production Practices (1938): 383-91. Print.
- ↑ Moss, R. Jr. "Design of Casings and Screens for Water Production and Injectio Wells." Treatment and Control of Injection Wells. Proc. of A.P.I Pacific Coast District Biennial Symposium, California, Anaheim. Print.
- ↑ Campbell, Michael D., and Jay H. Lehr. Water Well Technology: Field Principles of Exploration Drilling and Development of Ground Water and Other Selected Minerals. New York ; Montréal: McGraw-Hill, 1973. Print.
- ↑ Thomas, Gonzales R. "The Effects That Well Depth and Wellhead Protection Have on Bacterial Contamination of Private Water Wells in the Estes Park Valley, Colorado." Journal of Environmental Health 71.5 (2008): 17-23. Print.
- ↑ Zangar, C. N. Theory and Problems of Water Percolation. Denver: U.S. Department of the Interior, 1953. Print.
- ↑ Campbell, Michael D., and Jay H. Lehr. Water Well Technology: Field Principles of Exploration Drilling and Development of Ground Water and Other Selected Minerals. New York ; Montréal: McGraw-Hill, 1973. Print.
- ↑ Thomas, Gonzales R. "The Effects That Well Depth and Wellhead Protection Have on Bacterial Contamination of Private Water Wells in the Estes Park Valley, Colorado." Journal of Environmental Health 71.5 (2008): 17-23. Print.
- ↑ Dupuit, A.J.E.J., Etudes Theoriques et Pratiques sur le Mouvement des Eauz dans les Canaux Decouverts et a Travers les Terrains Permeambles, Paris, 275, 1863.
- ↑ Soliman, Mostafa M. Environmental Hydrogeology. Boca Raton: Lewis, 1998. Print.
| Authors | Khale |
|---|---|
| License | CC-BY-SA-3.0 |
| Cite as | Khale (2012–2025). "Hand dug wells". Appropedia. Retrieved November 28, 2025. |